Welcome to - Official website of Wuxi Jiangshan Machinery Co., Ltd.
Add to favorites    |   Email    |   Sitemap   |   Contact us      CHINESE   ENGLISH   JAPANESE
Service Hotline
(86) 510-8025 6945
Product Display
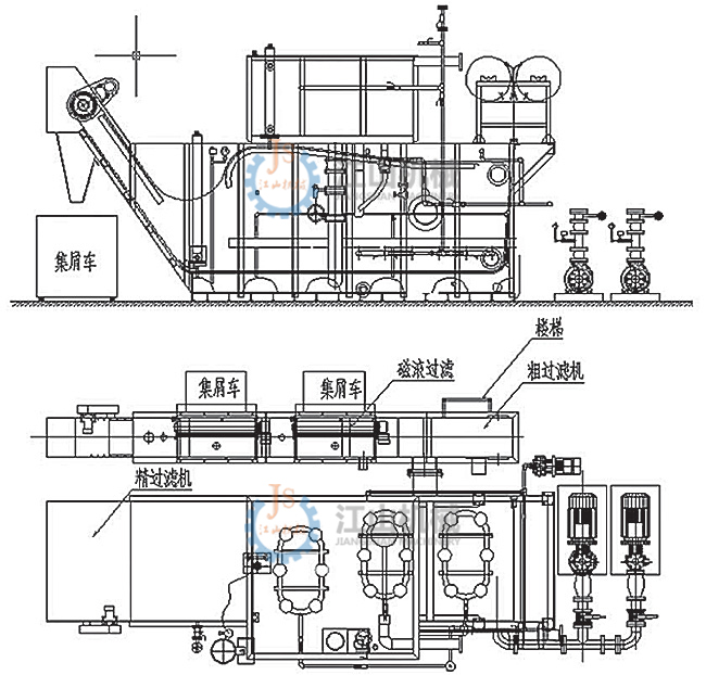
JS series integrated chip removal filter system
B、Vacuum negative pressure cooling and purifying device
Performance characteristics and uses:
         It is suitable for large flow coolant in cutting and grinding process, with high flow rate, high efficiency and reliable filtration.
         It mainly meets the needs of complex multi-mechanical processing, chipping, spindle internal cooling and tool cooling of the workshop assembly line.

It consists of the following parts: drive gear motor, dirty liquid tank, negative pressure chamber, liquid storage tank, working pump, filter cloth and electronic control system. After the coolant containing impurities enters the dirty liquid tank, the working pump starts to work, and the negative pressure formed in the negative pressure chamber causes the dirty coolant to pass through the filter cloth into the negative pressure chamber to form a clean liquid, which is then returned to the host by the working pump. During this process, impurities are adsorbed on the filter cloth, and a part of the clean liquid is stored in the liquid storage tank. When the filter cloth is severely blocked, the signaling system issues a command to drive the geared motor to automatically update the filter cloth, and the machine enters the next cycle.
The machine is suitable for large-flow coolant filtration and is suitable for the regeneration and purification of various types of machine grinding fluids.




« 1 2 3 4 5 6 7 »

Pre:JSG scraper series chip conveyor
Next:Water separator
    
About us   News   Career Opportunities    Contact us    Site index Print this page   Email us   Back to top
 
You are welcome to contact us at Jiangshan Machinery through the following contact methods, We sincerely welcome you to contact us by phone or email to discuss related matters.
  Address: No. 80, Qunxing Road, Mei Village, Xinwu District, Wuxi, Jiangsu, China
  Telephone:0510 - 8025 6945
  Mobile:13338111005
  Fax:0510 - 8025 6948
  E-mail:13338111005@163.com
Product
About
Service Support
 
 
Privacy Policy     Terms of use   
COPYRIGHT © 2018 Wuxi Jiangshan Machinery Co., Ltd. Copyright is owned by the company. Unauthorized, no other company or individual is allowed to copy or copy it!
WUXI JIANGSHAN MACHINERY CO.,LTD. ALL RIGHT RESERVED. Specializing in the production of chip conveyor, oil water separator, chip liquid filtration