ようこそ-無錫江山機械有限会社の公式サイト
コレクションに参加する
|
Email
|
サイトの地図
|
私たちに連絡する
中国語
ENGLISH
日本語
江山について
会社概要
栄誉の資質
ニュース
会社のニュース
業界ニュース
製品の展示
冷却クラッシュフィルタ
チェーン板
水箱を濾過する
ロールローダー+水箱
スクラップ+水箱
JBSチェーンシリーズ
JSGスクラップシリーズ
JSシリーズ総合排屑フィルタシステム
油水分離器
ターボ分離器
JSZ用フィルター
JS磁気ローラ分離器
PIC逆洗い型チェーン
ローラーフィルタリングタイプ+高圧水箱装置
磁気分離器
集中フィルタ
磁気吹き板式
ケース
生産現場
人材募集
連絡する
連絡する
オンラインメッセージ
杰艾斯機電
熱線電話
(86) 510-8025 6945
製品の展示
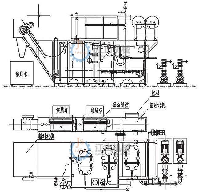
JSシリーズ総合排屑フィルタシステム
B、真空圧冷却装置
性能の特徴と用途:
切削加工に適した大流量冷却液は、流量達、効率が高く、濾過して信頼できる。
主に作業場流水線専用機類の複雑な多手段加工、突屑、主軸内の寒さ、刃物の冷却の必要性を満たす。
以下のいくつかの部分から構成される:減速モータ、汚れ液箱、負圧室、備液箱、作業ポンプ、フィルター、電気制御システムなどで構成されている。雑種を含んだ冷却液が汚れ液箱に入った後、作業ポンプが作業を開始し、負圧室内に形成された負圧によって、汚れた冷却液を濾過室に入れ、清液を形成して、作業ポンプからホストに戻す。このプロセス中の雑質は、フィルタに吸着され、一部の浄液が備液箱に保存されている。フィルタリングが深刻な場合、送信システムによってコマンドを出し、減速モータが自動的にフィルタを更新し、次の循環に入る。
この機械は、各種工作機械研削液の再生浄化に適した大流量冷却液を適用する。
«
‹
1
2
3
4
5
6
7
›
»
前のページ:JSGスクラップシリーズ
次のページ:油水分離器
私たちについて ニュースの動き 仕事のチャンス 私たちに連絡する サイト索引
ページを印刷する
私たちにメールを送る
トップに戻る
以下の連絡方法を通じて私達の江山機械と連絡を取る
ことを歓迎します。 誠を尽くしてご来電の商談に関
する相談を歓迎します。
住所:中国江蘇省無錫市新呉区梅村群興路80号
電話:0510 - 8025 6945
ファックス:0510 - 8025 6948
郵便ポスト:13338111005@163.com
製品の展示
JBSチェーンシリーズ
JSGスクラップシリーズ
JSシリーズ総合排屑フィルタシステム
油水分離器
もっと理解して >>
私たちについて
会社概要
生産現場
クライアントケース
栄誉の資質
サービスサポート
私たちに連絡する
オンラインメッセージ
人材募集
工商網監
蘇IC準備110 75428号- 1
プライバシー政策
使用条項
COPYRIGHT © 2018 無錫江山機械有限会社の著作権は当社の所有権に帰属して、許可を受けていないで、いかなる他の会社あるいは個人はすべて複製して、剽窃することを許可しません!
WUXI JIANGSHAN MACHINERY CO.,LTD. ALL RIGHT RESERVED. プロテクター、油水分離器、切屑液フィルタ